CTV,即 Crew Tansfer Vessel,是一种用于运输海上风电运维人员及小型配件的专业化运维船舶,适用于当日可返程的近海风电场运维交通。这类船舶的一般船长在20~25米,型宽约在6~9米,航速通常在20~30kn左右,船体以双体船为主,可搭载船员及运维人员10~20人,通过艏部顶靠登乘。
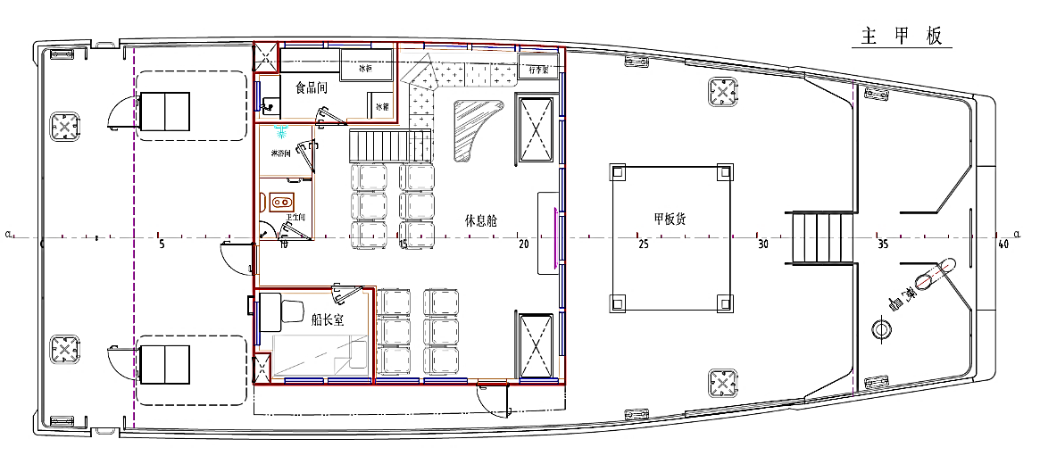
KOE301是一艘20米全铝合金双体高速风电运维船,采用DAMEN 2008母型船设计,具备25节航速,可乘坐12名乘员(另配5名船员),在7级风和2.5米有义波高海况下仍可安全出海。独特的战斧式船艏和升高前甲板可有效减少船艏升沉和海浪抨击,大推力顶靠机位可保证运维人员的安全登乘。该运维船已于2021年5月10日开工建造,预计将于同年11月完工并投入使用。该风电船的引入将为目前国内海上风电运维市场提供新的海上交通解决方案,将帮助海上风电运维市场朝着专业化、精细化的方向前进。
The Crew Transfer Vessel of KOE (CTV), a small high-speed maintenance vessel, is an all-aluminum alloy catamaran with a DAMEN tomahawk bow design, which can effectively reduce
bow rise and sink, and has good wave resistance, and can go to sea in force 7 winds (force 6 waves); it is equipped with 2×735kW diesel generators, with a speed of up to 25 knots, and can achieve a large thrust topside position. Ensure the safe boarding of operation and maintenance personnel.





